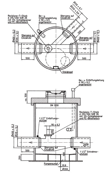
Wir führen Schachtprüfungen gemäß den einschlägigen Vorschriften durch:

  • für Betonfertigteil-, Kunststoff- und Mauerwerksschächte
  • für Tangentialschächte, Schacht- und Sonderbauwerke


Schachtprüfungen
Unser Leistungsspektrum umfasst:

  • die Dichtheitsprüfung mittels Wasserdruck
  • die Dichtheitsprüfung mittels Unterdruck (Vakuum)
  • die Durchführung der Prüfung als Sensorprüfung
  • das Absperren von Zu- und Abläufen in allen Nennweiten, auch in Sonderprofilen wie z.B. Eiprofil

Schachtprüfungen mit Wasser (Sensortechnik)

Vakuum-Schachtprüfungen

 

Hauptsitz Wettstetten

Dr.-Kurt-Schumacher-Ring 5
85139 Wettstetten

Tel.: (0841) 37 946 - 0

--> Ansprechpartner

--> Anfahrt

 

Zweigstelle Hilden

Herderstr. 79
40721 Hilden

Tel.: (02103) 25094 - 22

--> Ansprechpartner

--> Anfahrt

Zertifikate

 

JSN Boot template designed by JoomlaShine.com